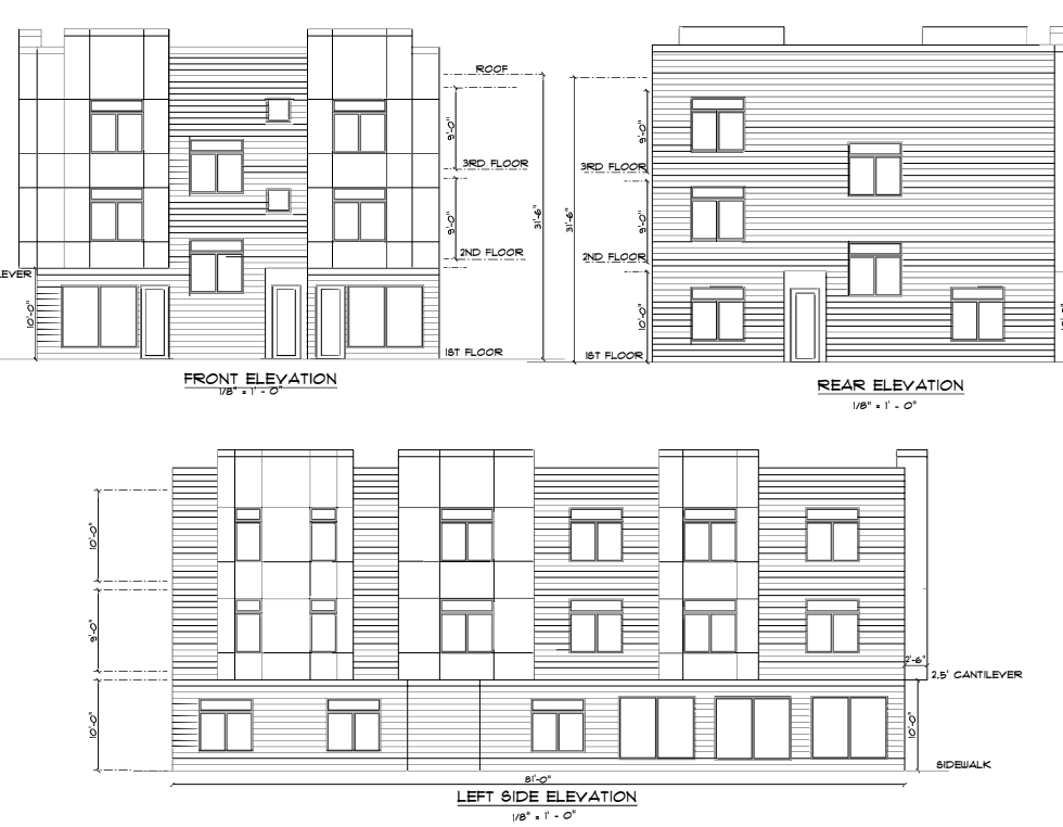
2 Lots- Approved Development for 10 Unit Mixed Use Building (19133)
$525,000.00
Shovel-Ready Development Opportunity – CMX2 Zoned | Temple University Area
Attention Developers! Two adjacent lots in North Philadelphia East, located in the heart of the thriving Temple University submarket, are ready for your next multi-family project. Zoned CMX2, this site comes with a zoning permit already approved for an 11,000+ sq ft, 3-story mixed-use building featuring:
Commercial use on the ground floor
9 residential units spanning the 1st to 3rd floors
Additional highlights:
Zoning permit for demolition of existing structures already secured
Building permit is in review – seller is willing to provide permit before settlement, making this a true shovel-ready project
Full architectural plans available to qualified buyers with proof of funds
Address
23xx N 11th St, Philadelphia, PA 19133
City
Philadelphia
State
PA
Zip Code
19133
Zoning
CMX2


.png)

